400-666-0005
中文 EN

低压固定分隔式开关柜 HMDS

HMDS低压固定分隔式开关柜具有国际先进的水平的间隔组合式低压成套开关设备,由动力配电中心(PC)和电动机控制中心(MCC)二部分组成,用于交流 50Hz,额定工作电压 660V 及以下的三相配电系统中。作为电力系统发电厂,变电站、工矿企业和高层建筑中受电、馈电、照明、电动机控制和无功补偿等用。

随着我国工业化进程的不断推进,低压成套开关设备得到了广泛的应用目前的国内低压成套开关设备已形成了固定式、抽屉式、固定间隔式不同类型的低压柜型,可满足不同用户的需求,由于抽屉式开关柜在使用中容易出现接插件、母线磨损,造成接触不良致母线发热,各种类型的抽屉推进机构、联锁机构频繁操作,容易损坏断裂,大电流抽屉柜整体重量及插件的力度大,影响抽屉的推进和拉出,抽屉柜的垂直通道散热比较差,标准抽屉柜的垂直母线载流量基本在额定电流 1000~ 1250A 左右,不利于馈电回路大电流的制作,在馈电回路为电操的情况下,做成抽屉需另外加联锁装置,降低了安全性为克服抽屉式开关柜的种种缺陷,开发了固定间隔式开关柜。


  • 使用环境条件

    周围空气温度不高于+40℃不低于-5℃,24小时内平均温度不得高于+35℃,超过时,需根据实际情况降容运行。

    户内使用,使用地点的海拔高度不得超过2000m

    周围空气相对湿度在最高温度为+40°C时不超过50%,在较低温度时允许有较大的相对湿度:+20℃时为90%,应考虑到由于温度的变化可能会偶然产生凝露的影响。

    装置安装时与垂直面的倾斜度不超过5%,且整组柜列相对平整。装置应安装在无剧烈震动和冲击以及不足以使电器元件受到不应有腐蚀的场所。

    用户有特殊要求时,可以与制造厂协商解决。


  • 型号及其含义

    图片3.png

主要技术参数

图片4.png

图片5.png

产品结构特点

1.  装置框架的基本零件为带有 25mm 间隔模数孔的C形骨架(DIN43660)。框架结构的连接采用了新工艺的自攻螺钉,所有框架零件均为免维修型单面安装,布局紧凑、操作安全,框架结构无需专用工具即能组装成各种型式的柜体。

2.  将配电回路设计成纵横分隔的结构,将设备分别置于单独的小室内,使主母线系统、配电母线系统、功能单元、电缆连接空间相互隔离保证了低压开关柜在检修维护时的独立性和安全性,能防止故障的扩大并避免触电的危险。实现设备的安全供配电。

单元小室的门上装有开关的门外延伸操作手柄,手柄和门带有机械联锁,各功能单元断路器在带电的状态下小室的门是不能打开的,手柄可加装挂锁保证安全。各小室门上可根据需要安装各种测量仪表、指示灯、按钮、旋转开关等,灵活方便。同时由于所有可移动部件均在断路器本身,减少了插接件的接触不良。功能小室内元器件主要根据规格、特性、使用要求等选用固定式、插拔式、抽出式三类型的塑壳断路器来满足用户的供配电需要。特别是插拔式、抽出式塑壳断路器由于自身采用固定式底座和移动式本体的自配插接型式,以及底座的板后接线方式确保有效的解决了抽屉柜的插接问题和保证功能小室内打开后的无带电部件外漏的情况,实现了良好的分隔。另外断路器本身连接端头通过螺栓与配电母线连接,螺栓连接可通过紧固力矩控制达到最好的连接效果。避免了抽屉柜插接触头点对面的插接产生的发热温升情况。抽出式塑壳断路器自身还有推进、抽出、隔离位置状态输出,能比较好的满足用户的试验需求。采用电操方案时,通过断路器自身联锁能防止带负荷移动。


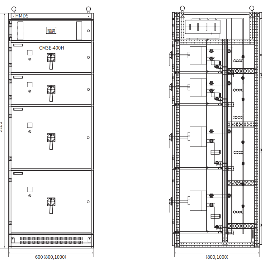
产品结构图

图片6.png

箱式站系统配置图

扫描二维码
关注黄华集团公众号

联系我们

157-5778-2799157-5778-0351